online kép - Fájl  tubefájl feltöltés file feltöltés - adja hozzá a fájlokat onlinefedezze fel a legújabb online dokumentumokKapcsolat
  
 

Letöltheto dokumentumok, programok, törvények, tervezetek, javaslatok, egyéb hasznos információk, receptek - Fájl kiterjesztések - fajltube.com

Online dokumentumok - kep
  

Egyszerü emelöszerkezetek

gépészet



felso sarok

egyéb tételek

jobb felso sarok
 
Kereskedési technikak és módszerek
Aszinkron motor modellek
Mérési Jegyzőkönyv
Adaptív innovaciós modell
NERNST- BUZÁGH készülék
Csigasorok
Ismertesse a siklócsapagyak méretezésének sorrendjét a hidrodinamikai hasonlósagi tv
HIDRODINAMIKAI ÉS MECHANIKAI MŰVELETEK. SZILÁRD-FOLYADÉK RENDSZEREK ELVÁLASZTÁSA.
Egyszerü emelöszerkezetek
 
bal also sarok   jobb also sarok

Egyszerü emelöszerkezetek


Az emelöszerkezetek két csoportra tagozódnak: - emelöeszközök

- teherfelvevö szerkezetek.

Az elsö csoportba sorolhatók a különféle megfogó sz 242f55c erkezetek, az emelömágnesek és a részben emelö, részben szállítómunkát végzö berendezések. A második csoportba a markolókat, az üstöket és csilléket sorolhatjuk.


A legegyszerübb emelöszerkezet az emelörúd, melyet kézzel helyezünk a teher alá, ill. mozgatunk.


A fogasléces emelöt különbözö gépek, állványzatok emelésére használják. Legtöbbször nem egy, hanem több emelöt alkalmaznak egyszerre és müködésüket pontosan összehangolják (az emelendö tárgy elferdülése, vetemedése miatt). Az alkalmazható teherbírás kb. 2..10 t, az emelési magasság 300...400 mm. Az emelés általában kézi forgattyúval, fogaskerék ill. kilincskerék segítségével végezhetö.

Ügyelni kell arra, hogy a fogasléc és a vele kapcsolódó kerék tengelytávolsága állandó maradjon, ellenkezö esetben a fogak letöredezhetnek, az emelés bizonytalanná válhat. A fogasléc felsö végén kiképzett váll felülete recés, az esetleges elcsúszás megakadályozása miatt.


A csavarorsós emelö hasonló elven müködik, de a szerkezeti felépítése egyszerübb. A szélesebb talapzaton nyugvó állvány felsö részén képezik ki perselyként a csavaranyát, amelyben a terhet mozgató csavarorsó forog. Az alkalmazott teherbírás 5 ...20 t, az emelési magasság max. 300 mm. Az orsót kihajlásra méretezni kell.

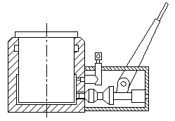
2.09.ábra



Az emelök között jelentös szerep jut a folyadéknyomásos (hidraulikus) megoldásoknak. Az aránylag kis szerkezeti méretek mellett nagy terhelések biztosíthatók. A berendezés a kettös dugattyúk elvén müködik (2.09.ábra). A nagyobb átméröjü ún. munkahengerben dugattyú mozog, felette van az emelölap. A jobb oldali tér olyan szivattyú, amelyböl folyadékot nyomunk a dugattyú alá, és így az emelölapot valamint a rá helyezett terhet felfelé emeljük. A megoldás a dugattyúfelületek arányában módosítja az áttételt. A kézi mozgató karon csak kis eröt kell kifejteni. Az emelési magasság viszonylag kicsi, kb. 160 mm.


A légnyomásos (pneumatikus) emelök ott alkalmazhatók hatékonyan, ahol sürített levegös hálózat áll rendelkezésre. A szerkezet alapját itt is a dugattyú képezi, amely egy zárt hengerben mozog. A dugattyúhoz alul horog csatlakozik, melyre az emelendö terhet akasztják. A berendezés úgy müködik, hogy a külsö préslevegö vezetékböl a henger alsó végéhez közeli nyíláson levegöt engednek a hengerbe. Ekkor a horoggal együtt emelkedni kezd a dugattyú. A teher süllyesztéséhez a sürített levegöt a henger alján kell kiengedni. Az alkalmazott teherbírások: 0,25...3,2 t, az emelési magasság: 0,5...1,5 m.


Találat: 3169


Felhasználási feltételek